Villa Bifamiliare in Vendita
Forte Dei Marmi
- F
- 100 mq
- 2 bagni
- 1.090.000 €
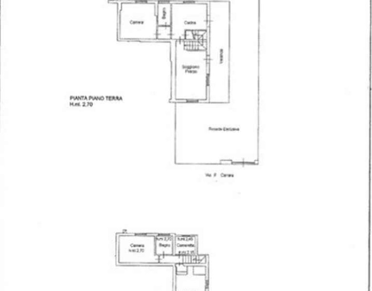
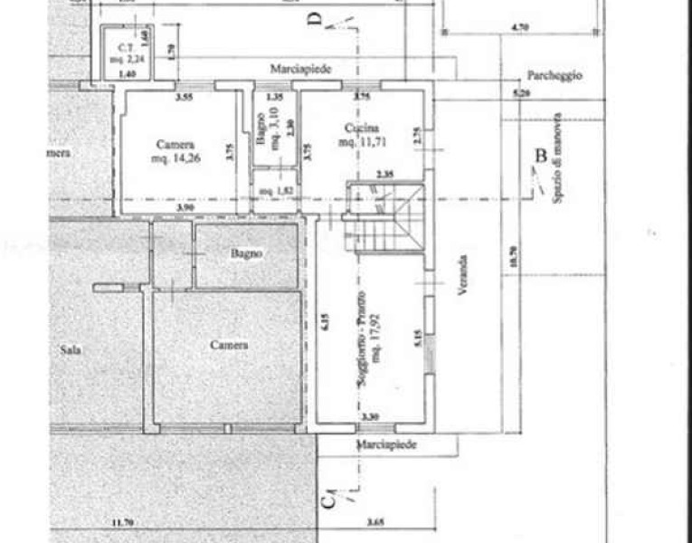
Rif: BV1641 - Bifamiliare in vendita a forte dei marmi disposta su due livelli fuori terra, isolata sui tre lati ed in aderenza all'altra unità su lato viareggio. Internamente è così composta: a piano terra, soggiorno, cucina abitabile, camera matrimoniale, bagno con doccia; al primo piano, due camere, bagno con vasca e sottotetto che può essere adibito a. . .
